豪森
醫院專用門生產廠家-全國
醫院專用門30強企業,中國時尚
醫院專用門品牌,中國綠色材料標志授權單位,3.15全國百家質量優秀門業品牌,醫院建材材料及設備服務指南指定廠家,BIO殺菌、24小時殺死99%的有害細菌,通過ISO9001:2000質量管理體系認證,中國木材流通協會木門委員會副會長單位等榮譽稱號。
醫院專用門產品特點
1、防火抗菌板門具有:防火、抗菌、硬度高等優點。
(1):門扇厚度高達40mm,具備卓越的隔音、隔熱性能。
(2):表面處理為防火抗菌板(色彩、木紋飾面任意可選)。
(3):鉸鏈、門鎖、閉門器等易損件由原裝進口,開關輕巧,經久耐用。
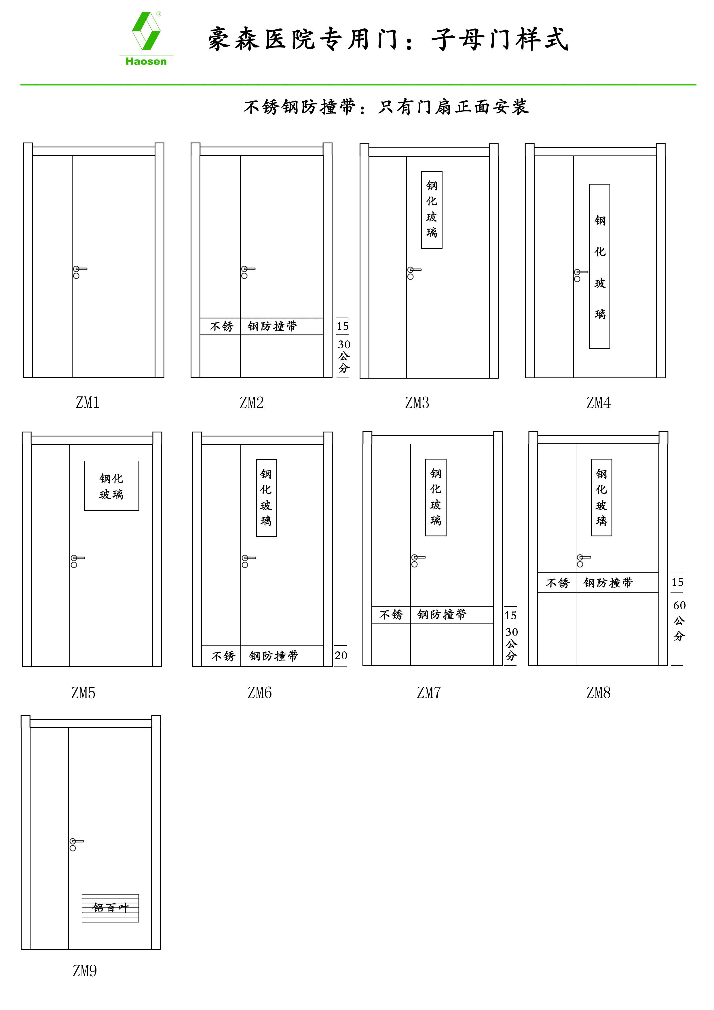
(4):可根據需要設置視窗、百葉視窗、通風百葉等。
( 1)硬度高:普通的木門經過磕碰后便會造成掉漆破損的嚴重現象,而我們這種產品硬度高,耐磨轉數6500多轉,。
(2)抗菌:產品在加工過程中加入了一種混合礦物質BIO能在24小時內殺死99.9%的有害細菌如沙門氏菌和大腸桿菌等,因此大大減少了細菌在醫院中交叉感染的危害程度。
(3)防火:公共場所對室內門的防火性能非常重視,豪森產品材質采用的是高品質防火板,防火指標達到國家二級認證,可為消防撲救爭取更多的時間,這也是普通木門無法比擬的。
(4)易清洗:由于我們的產品材質硬度高,耐酸堿。對于一些難以清洗的污濁物我們的產品可采用清潔球或清洗液清洗。
(5)不變形:我們采用的內部結構和材質為兩種,一種材質為高密度復合板運用框架結構受力傳導技術所設計的內部構造。另一種為多層縱橫木工板高壓壓制而成,其木質結構經過縱橫處理后改變了木材彎曲變形的作用力,使其更穩定,因此豪森產品更經久耐用不易變形。
(6)綠色環保:我們產品是通過國家鑒定的綠色環保產品,并帶有國家有關部門許可的綠色環保標志。所以我們的產品用在醫院是非常安全放心的。







醫院專用門防潮防水處理
一門套套板為實木多層板,在實際安裝時套板離地5毫米,板下安裝了2枚塑料腿,這樣大大減少了來自地面所帶來的常年潮氣!
二.套板反面(貼墻面)為防潮層面,這樣直接隔離開了和墻面的直接接觸所帶來的潮氣!
三.門套為防水木塑材料, 木塑材料直接浸泡在水中是沒任何問題的!
四.裝訂完塑料腿后,整個套板橫截斷面,放在防水蠟池中,全面進行浸泡防水密封處理,這樣直接杜絕了外部水潮氣的滲入,在板材運往異地受環境氣候的影響下,并能保持與出廠之時,板材內部整體結構均衡合理!
五.在產品安裝完畢之后,地面與門套之間的縫隙面,用防水玻璃膠填充,這樣完全隔離開了拖把拖地時所產生積水的滲透,更能增加
醫院門的整體美觀!










醫院各科室色彩搭配 產科:紫色可以松弛神經、緩解疼痛,對失眠和精神紊亂可起一定調節作用,紫色還能讓孕婦安靜,在產科病房中可以選用淺紫羅蘭色調。
兒科:兒科病房的床單和護士服可采用粉色等暖色調,以減少兒童恐懼感,增加溫馨親切的感覺,可將其色調設計為選擇代表兒童活潑性格的橙色調,配搭綠、紅、藍等調子。
內外科:內分泌不佳的人,可以多選用綠色,綠色可鎮靜神經系統,促進胃液分泌,幫助消化,并有助于消除疲勞,對昏厥、疲勞、惡心與消極情緒有一定作用。
婦產科:為體現女性特點,可用淺紫色、淺粉紅色等系列,營造一種時尚、溫馨、柔和的女性就醫環境。
神經科:黃色可刺激神經和消化系統,有助于加強邏輯思維能力,能激發憂郁病患者的欲望和意志活動。
五官科:平靜的藍色能舒緩肌肉的緊張,松弛神經。
手術室:可選用綠色或藍色,給人一種安靜、舒適、信任的感覺,可緩解精神疲勞,眼疲勞,還可以消除醫生久視血紅色產生的視覺疲勞,穩定醫生的情緒。
候診室:可采用暖黃色、黃色是色譜中令人愉悅的顏色,被認為是智慧和光明的象征,可以激發人的活力。
診療室:適于用藍色使人感到平靜的顏色,使患者消除緊張情緒。
急診科:綠色,象征著綠色通道,有助于緩解神經緊張。





















